705 W 91st Street, Kansas City, MO 64114

     
  • 4Beds
  •   
  • 2 Baths
  •  
  • 0½ Baths
  •  
  • 1,760Sq Ft
Mortgage Calculator

$350,000
 est. $1,522/mo

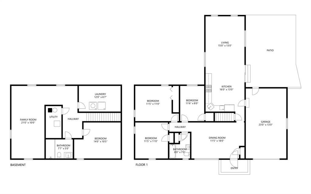
Welcome home to this updated and spacious ranch. Lots of room for real living in the well planned addition creating an open living room and kitchen. Large updated kitchen is a chef’s dream with gas stove, quartz countertops, custom cabinets and plenty of space for center island and even a table if an eat-in kitchen is desired. Lots of room to entertain in the open living room and on the 24 x 14 paver patio that offers a built-in firepit and large fenced yard for summer BBQ’s and get togethers. Finished basement with LVP provides a true 4th bedroom and 2nd full bath as well as family room and useful laundry room. Updates include new dishwasher, water heater, electric panel, radon mitigation system, high-speed LAN line and EV-charging port in the attached garage. HVAC: 5 yrs, Roof: 8 yrs, Sewer line replaced/relined to the main in 2022. Well located near Ward Parkway mall and in the vibrant Waldo area for lots of local shopping, diverse dining opportunities as well as convenient highway access. Be sure to check out the virtual tour, and schedule your appointment to see this one in person now!

Directions
From Ward Parkwayk, East on 90th, South on Western Hills Dr, E on 91st Tr
Subdivision
Western Hills
City
Kansas City
County
Jackson
Property Type
Residential / Single Family Residence
Listing Updated
Apr 18, 2026 at 2:04pm
MLS Number
2614059
Property Tax
$2,487
Home Owners Association
No
Disclaimer
The information displayed on this page is confidential, proprietary, and copyrighted information of Heartland Multiple Listing Service, Inc. (“Heartland MLS”). Copyright 2026, Heartland Multiple Listing Service, Inc. Heartland MLS, Elite Realty and Agent Jo do not make any warranty or representation concerning the timeliness or accuracy of the information displayed herein. In consideration for the receipt of the information on this page, the recipient agrees to use the information solely for the private non-commercial purpose of identifying a property in which the recipient has a good faith interest in acquiring.
The data relating to real estate displayed on this website comes in part from the Heartland Multiple Listing Service database compilation. The properties displayed on this website may not be all of the properties in the Heartland MLS database compilation, or all of the properties listed with other brokers participating in the Heartland MLS IDX program. Detailed information about the properties displayed on this website includes the name of the listing company.
Information is deemed reliable but is not guaranteed.

Copyright © 2026 ELITE Realty.