00000 Lot#2 246th Street, Tonganoxie, KS 66086

Mortgage Calculator

$181,200
 est. $696/mo

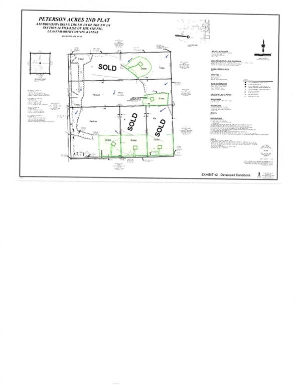
Seller has installed a driveway entrance onto property, best if you stay on the gravel with vehicle. This is 1 of 5 parcels being offered for anyone seeking to live outside of Tonganoxie (approx. 5 miles) on 246th Str. Enjoy the convenience of nearby city amenities while living a country life style. Great views and solitude are what come when buying this property. A part of these parcels are in a flood zone, this parcel has plenty of room to build on the tree covered hill side located on the east end of property over looking the valley.

Directions
From 24/40 and Hwy. 16 in Tonganoxie, go west to Sandusky Rd., continue heading west on Sandusky then south while the road turns into 246th str. on the curve. Continue south to just north of Honey Creek Rd. Property is on the east side of 246th Str.
Subdivision
Other
City
Tonganoxie
County
Leavenworth
Property Type
Farm / Unimproved Land
Listing Updated
Mar 09, 2026 at 8:03am
MLS Number
2605423
Property Tax
$182
Zoning
$AG
Home Owners Association
No
Disclaimer
The information displayed on this page is confidential, proprietary, and copyrighted information of Heartland Multiple Listing Service, Inc. (“Heartland MLS”). Copyright 2026, Heartland Multiple Listing Service, Inc. Heartland MLS, Elite Realty and Agent Jo do not make any warranty or representation concerning the timeliness or accuracy of the information displayed herein. In consideration for the receipt of the information on this page, the recipient agrees to use the information solely for the private non-commercial purpose of identifying a property in which the recipient has a good faith interest in acquiring.
The data relating to real estate displayed on this website comes in part from the Heartland Multiple Listing Service database compilation. The properties displayed on this website may not be all of the properties in the Heartland MLS database compilation, or all of the properties listed with other brokers participating in the Heartland MLS IDX program. Detailed information about the properties displayed on this website includes the name of the listing company.
Information is deemed reliable but is not guaranteed.

Copyright © 2026 ELITE Realty.