11346 Sycamore Terrace, Kansas City, MO 64134

     
  • 3Beds
  •   
  • 1 Bath
  •  
  • 0½ Baths
  •  
  • 912Sq Ft
Mortgage Calculator

$139,900
 est. $611/mo

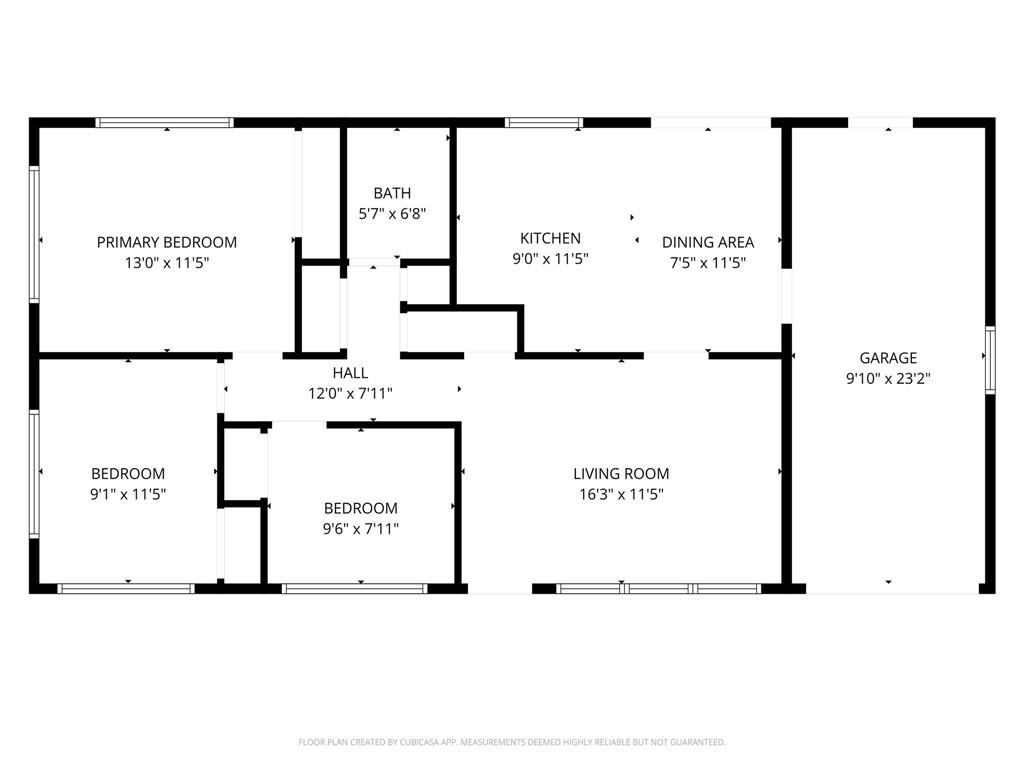
Located in Kansas City, 11346 Sycamore Terrace is a charming 1-story home featuring 3 bedrooms and 1 full bathroom. This property offers a practical, easy-flow layout with comfortable living spaces all on one level. The bedrooms provide ample space, and the single-story design makes for convenient everyday living. A great opportunity for homeowners or investors seeking a well-situated home in a convenient location.

Directions
Blue Ridge Blvd just South of 107th, Go East on Sycamore Terrace until you arrive at the home on your right.
Subdivision
Ruskin Heights
City
Kansas City
County
Jackson
Property Type
Residential / Single Family Residence
Listing Updated
Mar 07, 2026 at 2:03am
MLS Number
2603746
Property Tax
$1,029
Home Owners Association
No
Disclaimer
The information displayed on this page is confidential, proprietary, and copyrighted information of Heartland Multiple Listing Service, Inc. (“Heartland MLS”). Copyright 2026, Heartland Multiple Listing Service, Inc. Heartland MLS, Elite Realty and Agent Jo do not make any warranty or representation concerning the timeliness or accuracy of the information displayed herein. In consideration for the receipt of the information on this page, the recipient agrees to use the information solely for the private non-commercial purpose of identifying a property in which the recipient has a good faith interest in acquiring.
The data relating to real estate displayed on this website comes in part from the Heartland Multiple Listing Service database compilation. The properties displayed on this website may not be all of the properties in the Heartland MLS database compilation, or all of the properties listed with other brokers participating in the Heartland MLS IDX program. Detailed information about the properties displayed on this website includes the name of the listing company.
Information is deemed reliable but is not guaranteed.

Copyright © 2026 ELITE Realty.