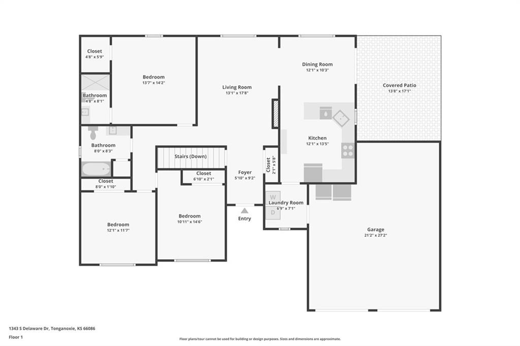
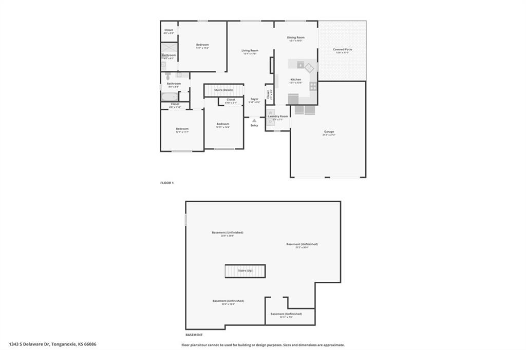
1343 S Delaware Drive, Tonganoxie, KS 66086

     
  • 3Beds
  •   
  • 2 Baths
  •  
  • 0½ Baths
  •  
  • 1,540Sq Ft
Mortgage Calculator

$475,000
 est. $2,288/mo

One Owner. Half-Acre+/-. A Shop That Has to Be Seen. This classic, well-cared-for 3 bed / 2 bath home delivers comfort today and serious potential for tomorrow. The unfinished basement is already stubbed for a bathroom and features an egress window. Outside, a privacy fenced yard offers your own quiet retreat, while the standout 40x60 spray foam insulated shop complete with a bathroom and wood burning stove is ready for work, hobbies, or whatever you dream up. A second shed and a generous half-acre+/- lot round out a property that's truly hard to duplicate.

Directions
From 24/40- East on Washington St- South on Delaware St- home on East
Subdivision
None
City
Tonganoxie
County
Leavenworth
Property Type
Residential / Single Family Residence
Listing Updated
Mar 26, 2026 at 9:03am
MLS Number
2602613
Property Tax
$6,051
Home Owners Association
No
Disclaimer
The information displayed on this page is confidential, proprietary, and copyrighted information of Heartland Multiple Listing Service, Inc. (“Heartland MLS”). Copyright 2026, Heartland Multiple Listing Service, Inc. Heartland MLS, Elite Realty and Agent Jo do not make any warranty or representation concerning the timeliness or accuracy of the information displayed herein. In consideration for the receipt of the information on this page, the recipient agrees to use the information solely for the private non-commercial purpose of identifying a property in which the recipient has a good faith interest in acquiring.
The data relating to real estate displayed on this website comes in part from the Heartland Multiple Listing Service database compilation. The properties displayed on this website may not be all of the properties in the Heartland MLS database compilation, or all of the properties listed with other brokers participating in the Heartland MLS IDX program. Detailed information about the properties displayed on this website includes the name of the listing company.
Information is deemed reliable but is not guaranteed.

Copyright © 2026 ELITE Realty.