2716 Stone Creek Avenue, Tonganoxie, KS 66086

     
  • 5Beds
  •   
  • 4 Baths
  •  
  • 0½ Baths
  •  
  • 2,608Sq Ft
Mortgage Calculator

$549,500
 est. $2,521/mo

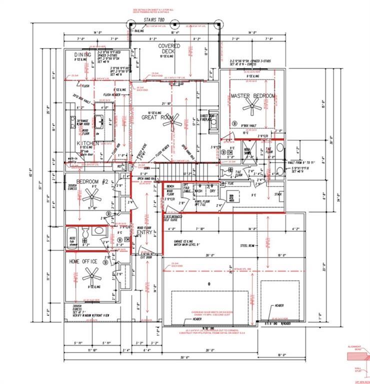
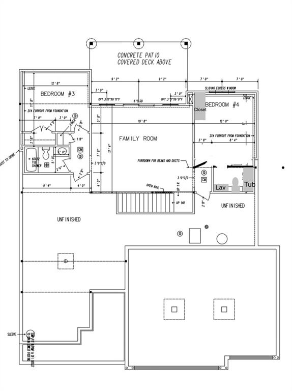
CHECK-OUT this New Build in an Expanding Neighborhood…. SO many FEATURES to list (see features page for details). You will be Captivated by Quality and Value added Features. Natural LIGHT is abundant with the 12ft Sliding Patio Door that leads to a Covered Composite Deck with a ceiling fan to enjoy a Nice BREEZE on a Summer Night. 5 bedrooms is a PLUS! The Hardwood floors on the Main Level make cleaning and maintenance EASY.... Enjoy the LARGE Open Main Area and Kitchen for Entertaining Guests. The Covered Patio in the back provides Additional Entertainment Space with a WALKOUT Basement. Basement features a stubbed location for a wet bar and 2 ADDITIONAL bedrooms with 1 having its OWN Bathroom. The in-laws may never leave-LOL! Just 20 minutes from Legends Entertainment District. Current Construction Completion estimated by August 2026. IF under contract early, Buyer may have some Limited Options to make certain selections. Contact Listing Agent for more details... SEE Features List Attached.

Directions
Coming from The Legends shopping district, head West on State Avenue until you reach park Dr, turn right to head north on Park Dr. Then take the next right onto Woodfield Dr. at the stop sign take a left on to Stone Creek Ave. follow stone creek ave until you reach the destination 2716 Stone Creek Ave.
Subdivision
Other
City
Tonganoxie
County
Leavenworth
Property Type
Residential / Single Family Residence
Listing Updated
Mar 26, 2026 at 1:03pm
MLS Number
2598677
Property Tax
$0
Home Owners Association
No
Disclaimer
The information displayed on this page is confidential, proprietary, and copyrighted information of Heartland Multiple Listing Service, Inc. (“Heartland MLS”). Copyright 2026, Heartland Multiple Listing Service, Inc. Heartland MLS, Elite Realty and Agent Jo do not make any warranty or representation concerning the timeliness or accuracy of the information displayed herein. In consideration for the receipt of the information on this page, the recipient agrees to use the information solely for the private non-commercial purpose of identifying a property in which the recipient has a good faith interest in acquiring.
The data relating to real estate displayed on this website comes in part from the Heartland Multiple Listing Service database compilation. The properties displayed on this website may not be all of the properties in the Heartland MLS database compilation, or all of the properties listed with other brokers participating in the Heartland MLS IDX program. Detailed information about the properties displayed on this website includes the name of the listing company.
Information is deemed reliable but is not guaranteed.

Copyright © 2026 ELITE Realty.