12000 E 56th Terrace, Kansas City, MO 64133

     
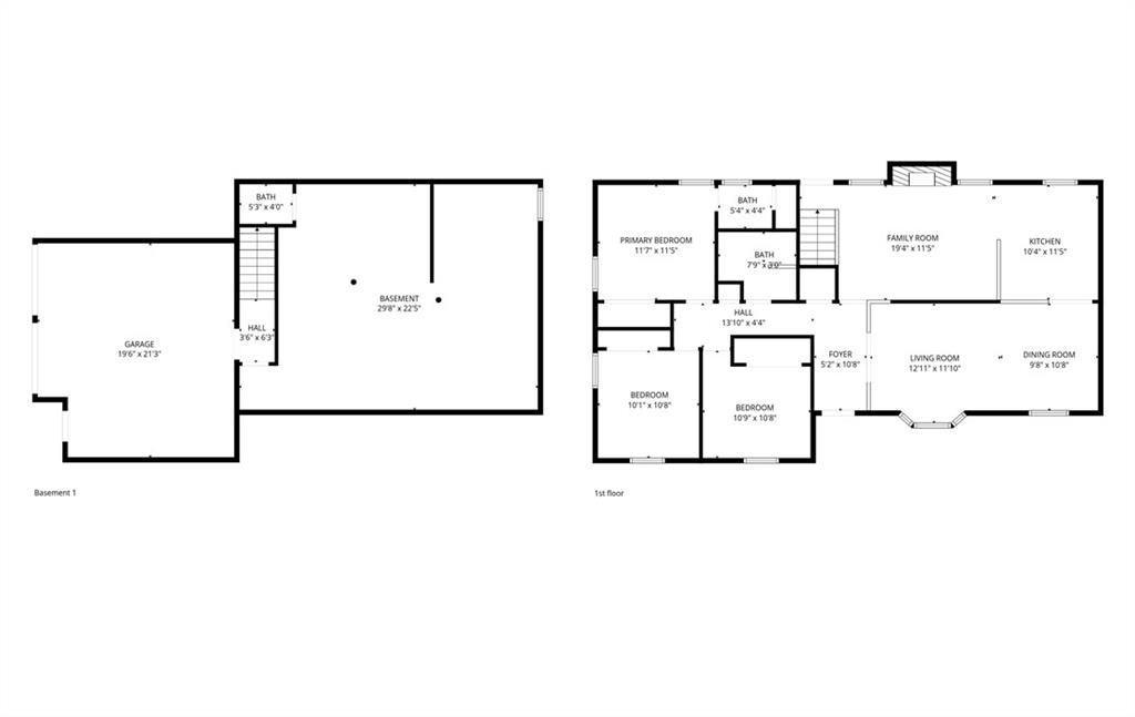
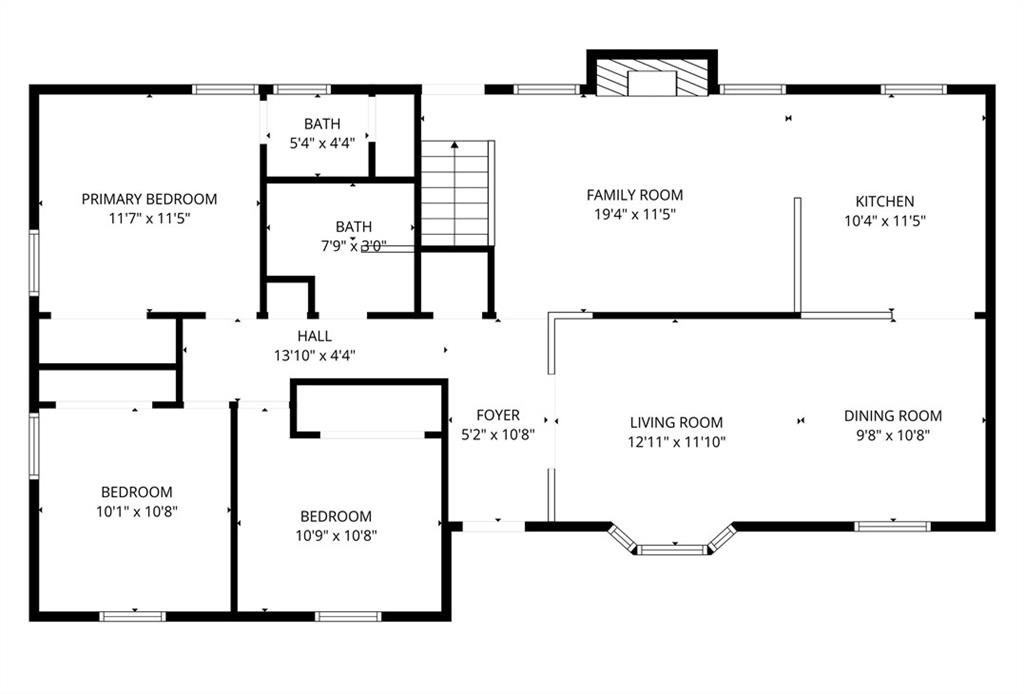
  • 3Beds
  •   
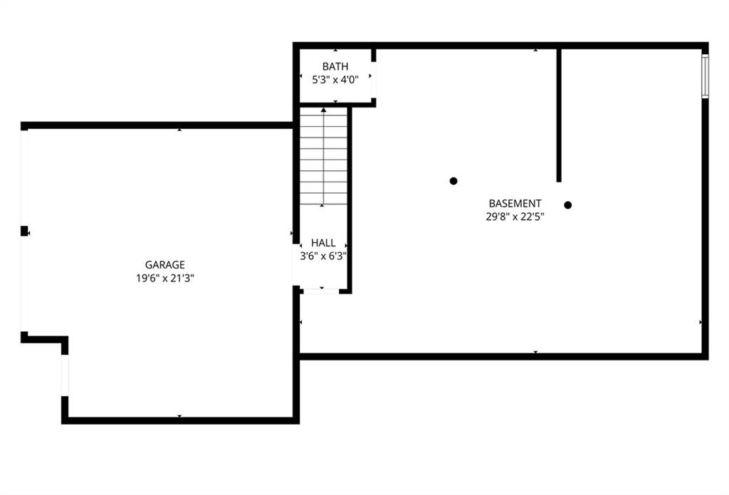
  • 1 Bath
  •  
  • 2½ Baths
  •  
  • 1,299Sq Ft
Mortgage Calculator

$220,000
 est. $1,061/mo

Great house on a great corner lot, featuring 3 bedrooms, 1.5 bathrooms, additional half bathroom in the lower level workshop area, oversized 2-car garage, fenced yard, newer roof and appliances, large family room with fireplace plus formal living and dining room space. Move right in or add value by easily adding a shower in the primary bedroom suite or finishing the large basement.

Directions
From 435 Hwy, exit East onto 63rd St, turn Left (North) onto Woodson Rd, turn Right (East) onto 59th St, turn Left (North) onto Westridge Rd, to property address at corner of Westridge and 56th Terrace.
Subdivision
Fairway Hills
City
Kansas City
County
Jackson
Property Type
Residential / Single Family Residence
Listing Updated
Jan 24, 2026 at 4:01am
MLS Number
2597142
Property Tax
$2,816
Home Owners Association
No
Disclaimer
The information displayed on this page is confidential, proprietary, and copyrighted information of Heartland Multiple Listing Service, Inc. (“Heartland MLS”). Copyright 2026, Heartland Multiple Listing Service, Inc. Heartland MLS, Elite Realty and Agent Jo do not make any warranty or representation concerning the timeliness or accuracy of the information displayed herein. In consideration for the receipt of the information on this page, the recipient agrees to use the information solely for the private non-commercial purpose of identifying a property in which the recipient has a good faith interest in acquiring.
The data relating to real estate displayed on this website comes in part from the Heartland Multiple Listing Service database compilation. The properties displayed on this website may not be all of the properties in the Heartland MLS database compilation, or all of the properties listed with other brokers participating in the Heartland MLS IDX program. Detailed information about the properties displayed on this website includes the name of the listing company.
Information is deemed reliable but is not guaranteed.

Copyright © 2026 ELITE Realty.