11213 E 61st Street, Raytown, MO 64133

     
  • 3Beds
  •   
  • 3 Baths
  •  
  • 0½ Baths
  •  
  • 2,212Sq Ft
Mortgage Calculator

$280,000
 est. $1,327/mo

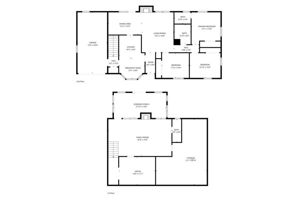
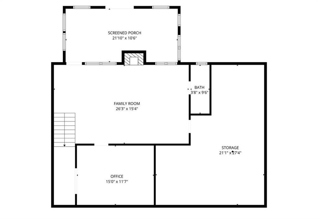
This 4-sided brick ranch offers an impressive amount of finished space and versatility, featuring a fully finished basement, multiple living areas, and thoughtful updates throughout. With hardwood floors in the living room and bedrooms and luxury vinyl flooring in the entry and kitchen, the home is both functional and well maintained. The main level includes an eat-in kitchen with granite countertops, painted cabinets, stainless steel appliances, a gas stove, pantry, and a dedicated dining room with sliding doors leading to a large two-tier deck. The fully fenced backyard provides substantial outdoor space, and patio furniture and pergola are negotiable. The finished basement adds significant value with a second family room and fireplace, full bathroom, large storage room, and a non-conforming bedroom currently used as a studio with a generous closet. Additional features include an all-seasons sunroom with electrical outlets and ceiling fans, a garage with stairs to the attic, attic fan, large closets throughout, and newer plumbing, water heater, and HVAC. Located on a quiet street!

Directions
From US-40 Hwy, turn south onto S Sterling Ave. Continue approximately 2.6 miles, then turn left onto E 61st St. Home is located a short distance down the street at 11213 E 61st St.
Subdivision
Springwood Extension
City
Raytown
County
Jackson
Property Type
Residential / Single Family Residence
Listing Updated
Jan 01, 2026 at 1:01pm
MLS Number
2592683
Property Tax
$3,308
Home Owners Association
No
Disclaimer
The information displayed on this page is confidential, proprietary, and copyrighted information of Heartland Multiple Listing Service, Inc. (“Heartland MLS”). Copyright 2026, Heartland Multiple Listing Service, Inc. Heartland MLS, Elite Realty and Agent Jo do not make any warranty or representation concerning the timeliness or accuracy of the information displayed herein. In consideration for the receipt of the information on this page, the recipient agrees to use the information solely for the private non-commercial purpose of identifying a property in which the recipient has a good faith interest in acquiring.
The data relating to real estate displayed on this website comes in part from the Heartland Multiple Listing Service database compilation. The properties displayed on this website may not be all of the properties in the Heartland MLS database compilation, or all of the properties listed with other brokers participating in the Heartland MLS IDX program. Detailed information about the properties displayed on this website includes the name of the listing company.
Information is deemed reliable but is not guaranteed.

Copyright © 2026 ELITE Realty.