18355 W 205th Street, Spring Hill, KS 66083

     
  • 4Beds
  •   
  • 3 Baths
  •  
  • 1½ Bath
  •  
  • 2,013Sq Ft
Mortgage Calculator

$587,763
 est. $2,283/mo

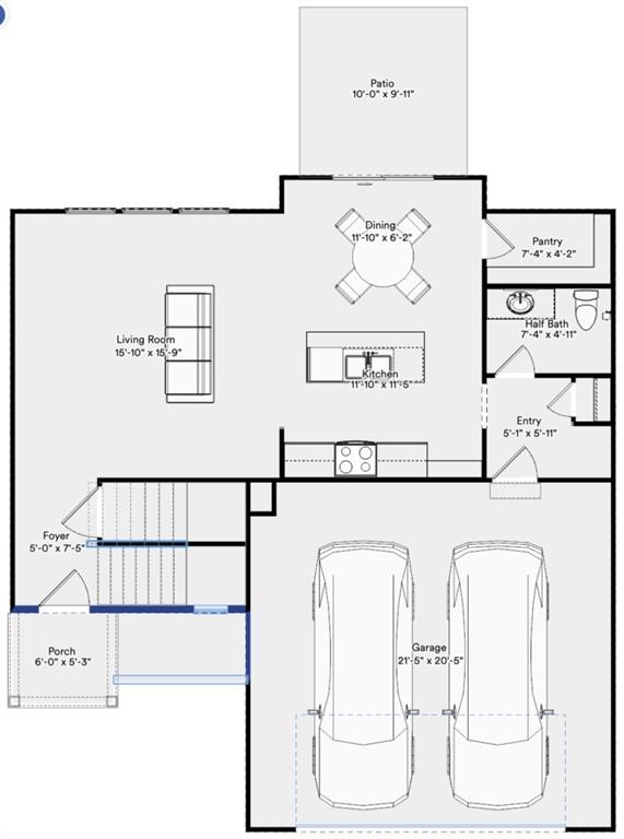
Come see Spring Hill's newest affordable choice for new home construction! Introducing the stunning NEW Aiden plan by Ashlar Homes, a sophisticated 2-story masterpiece designed for durability and energy efficiency. This home features high-end James Hardie® board with ColorPlus® Technology siding and advanced double-wall construction. The modern exterior is accented by sleek black windows and a spacious 3-car garage. Inside, the main floor shines with durable LVP flooring and an abundance of natural light. The gourmet kitchen is a chef’s dream, boasting 36" soft-close cabinets with crown molding, quartz countertops, a gas stove, and Frigidaire® stainless steel appliances. Functional features include a large walk-in pantry, a dedicated mudroom with a boot bench, and a convenient built-in desk. Retreat to the massive primary suite with an expansive walk-in closet and a spa-like bathroom featuring ceramic tile. The walkout basement is fully finished with a rec room, full bath, and a stylish wet bar. Additional highlights include a modern fireplace, window blinds, and a full irrigation system. Model Under construction and Coming Soon! No Physical House yet, at excavation stage

Directions
Take US-169 S to W 199st St in Spring Hill, turn left onto W 199th St, immediate left at light onto 199th St, head south onto S Ridgeview Rd., turn right onto 205th St
Subdivision
Fox Hollow
City
Spring Hill
County
Johnson, KS
Property Type
Residential / Single Family Residence
Listing Updated
Dec 17, 2025 at 4:12am
MLS Number
2592046
Property Tax
$919
Home Owners Association
Yes - Fox Hollow Homes Association
Disclaimer
The information displayed on this page is confidential, proprietary, and copyrighted information of Heartland Multiple Listing Service, Inc. (“Heartland MLS”). Copyright 2025, Heartland Multiple Listing Service, Inc. Heartland MLS, Elite Realty and Agent Jo do not make any warranty or representation concerning the timeliness or accuracy of the information displayed herein. In consideration for the receipt of the information on this page, the recipient agrees to use the information solely for the private non-commercial purpose of identifying a property in which the recipient has a good faith interest in acquiring.
The data relating to real estate displayed on this website comes in part from the Heartland Multiple Listing Service database compilation. The properties displayed on this website may not be all of the properties in the Heartland MLS database compilation, or all of the properties listed with other brokers participating in the Heartland MLS IDX program. Detailed information about the properties displayed on this website includes the name of the listing company.
Information is deemed reliable but is not guaranteed.

Copyright © 2025 ELITE Realty.