622 N Main Street, Independence, MO 64050

Mortgage Calculator

$795,000
 est. $3,912/mo

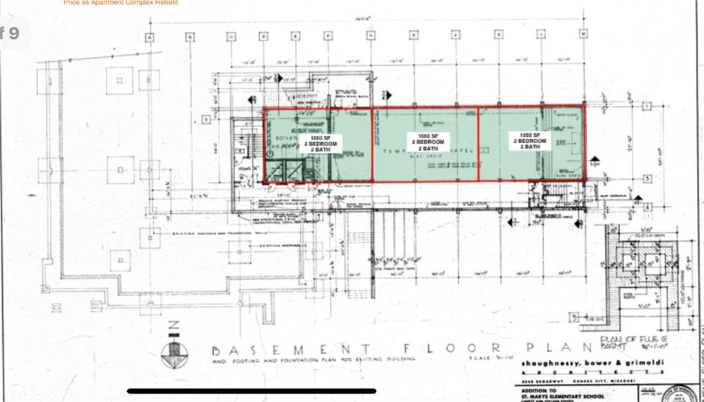
Adaptive reuse opportunity formally known as St. Mary's Highschool is located just off the Independence square in an opportunity zone and could serve several different purposes including multi family. The roof was recently replaced in the last 4-5 years, Asbestos's has been abated, the property is eligible for historic tax credits. Owner has never occupied the property, and it has remained vacant for several years, all measurements and information is approximant and to the best of our knowledge. Buyer and agent will need to perform proper due diligence and research. Please note the property has no power or water and has sat vacant for nearly a decade. During this time span there has been occurrences where vandals and trespassers have entered the property and caused damage. Seller agent and seller will be glad to assist with verifying information, Independence Chamber of Commerce is familiar with the property and will be glad to assist with more details, questions and concerns. KCATA has verified financing interests to the right buyer. Please contact list agent for showing instructions. Note: The property for sale is the two buildings which were previously the school buildings. The Church building and the detached gymnasium are not included in the sale.

Directions
I70 to Noland north. west on truman. north on main. property at corner of college and main.
City
Independence
County
Jackson
Property Type
Business Opportunity / Business
Listing Updated
Dec 11, 2025 at 1:12pm
MLS Number
2591863
Property Tax
$11,124
Zoning
$C
Disclaimer
The information displayed on this page is confidential, proprietary, and copyrighted information of Heartland Multiple Listing Service, Inc. (“Heartland MLS”). Copyright 2026, Heartland Multiple Listing Service, Inc. Heartland MLS, Elite Realty and Agent Jo do not make any warranty or representation concerning the timeliness or accuracy of the information displayed herein. In consideration for the receipt of the information on this page, the recipient agrees to use the information solely for the private non-commercial purpose of identifying a property in which the recipient has a good faith interest in acquiring.
The data relating to real estate displayed on this website comes in part from the Heartland Multiple Listing Service database compilation. The properties displayed on this website may not be all of the properties in the Heartland MLS database compilation, or all of the properties listed with other brokers participating in the Heartland MLS IDX program. Detailed information about the properties displayed on this website includes the name of the listing company.
Information is deemed reliable but is not guaranteed.

Copyright © 2026 ELITE Realty.