3509 Brooklyn Avenue, Kansas City, MO 64109

     
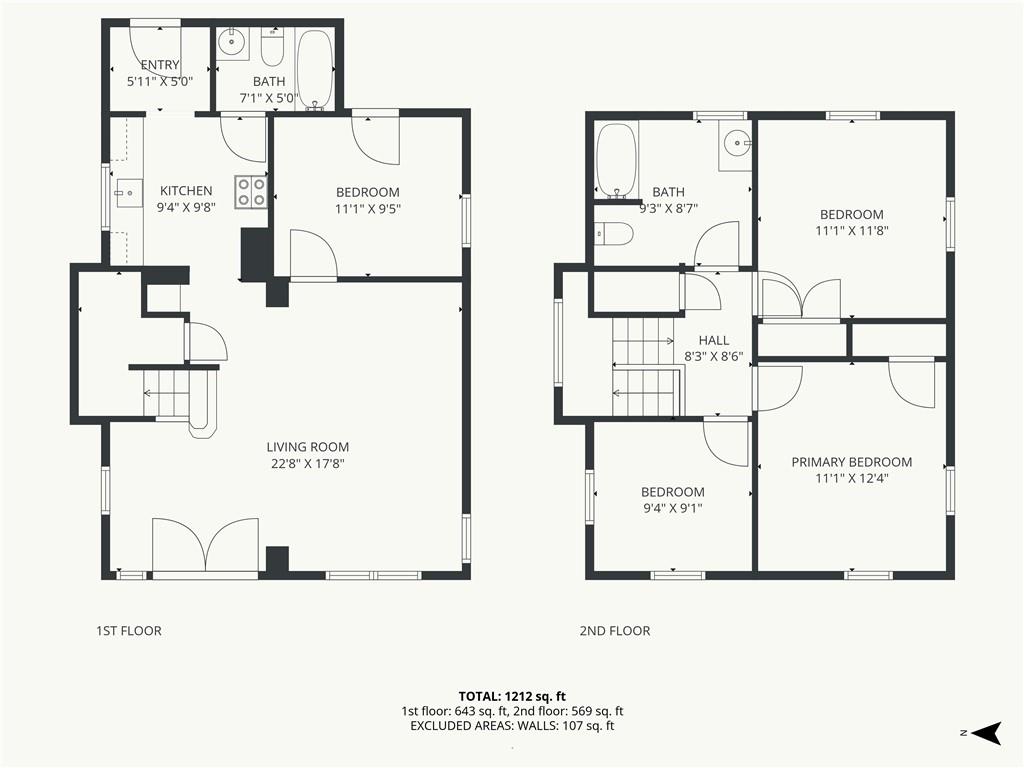
  • 4Beds
  •   
  • 2 Baths
  •  
  • 0½ Baths
  •  
  • 1,418Sq Ft
Mortgage Calculator

$158,999
 est. $693/mo

Step into a fully refreshed home where the hard work has already been done for you. This complete rehab features all-new front and back decks, a brand-new kitchen, fresh paint, and new carpet throughout—creating a clean, move-in-ready space with modern comfort wrapped in classic character. The main level welcomes you with bright living space and updated flooring that flows into the redesigned kitchen, offering new cabinets, counters, and tile. A main-level bedroom adds flexibility for guests, an office, or additional living needs, conveniently located near the updated full bath. Upstairs, three freshly finished bedrooms offer plenty of room to spread out, each with new carpet and neutral tones ready for your personal style. Both outdoor spaces shine: enjoy morning coffee on the rebuilt front porch or host friends on the spacious new back deck overlooking a fenced yard. Complete with convenient off-street parking. This home offers comfort today and potential for tomorrow—ideal for both homeowners and investors.

Directions
Follow I-29 S and US-71 S to Michigan Ave in Kaw Township. Take the exit toward 39th St from US-71 S. Take E 39th St to Brooklyn Ave.
Subdivision
Euclid Grove
City
Kansas City
County
Jackson
Property Type
Residential / Single Family Residence
Listing Updated
Dec 10, 2025 at 12:12pm
MLS Number
2588515
Property Tax
$1,142
Home Owners Association
No
Disclaimer
The information displayed on this page is confidential, proprietary, and copyrighted information of Heartland Multiple Listing Service, Inc. (“Heartland MLS”). Copyright 2025, Heartland Multiple Listing Service, Inc. Heartland MLS, Elite Realty and Agent Jo do not make any warranty or representation concerning the timeliness or accuracy of the information displayed herein. In consideration for the receipt of the information on this page, the recipient agrees to use the information solely for the private non-commercial purpose of identifying a property in which the recipient has a good faith interest in acquiring.
The data relating to real estate displayed on this website comes in part from the Heartland Multiple Listing Service database compilation. The properties displayed on this website may not be all of the properties in the Heartland MLS database compilation, or all of the properties listed with other brokers participating in the Heartland MLS IDX program. Detailed information about the properties displayed on this website includes the name of the listing company.
Information is deemed reliable but is not guaranteed.

Copyright © 2025 ELITE Realty.