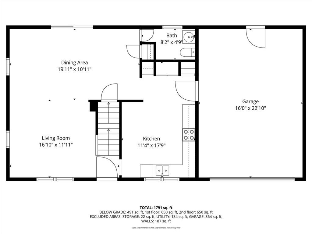
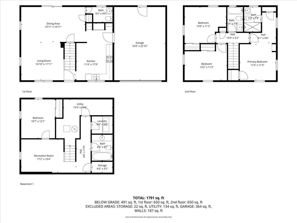
313 S Walker Street, Olathe, KS 66061

     
  • 4Beds
  •   
  • 3 Baths
  •  
  • 1½ Bath
  •  
  • 1,791Sq Ft
Mortgage Calculator

$399,000
 est. $1,732/mo

This updated two-story home in Olathe offers four bedrooms, three and a half baths, and almost 1800 square feet of living space, with a full finished basement adding even more space for storage, hobbies, and the 4th bedroom with egress window. The exterior combines timeless brick with fresh paint and landscape, while inside you’ll find an open and inviting layout. The front living room great natural light and brand new hardwood floors flows into a dining area and an updated kitchen featuring white cabinetry, granite counters, subway tile backsplash, and stainless steel appliances - and all appliances are brand new and stay with the home (except refrigerator which is not as new but stays also). Upstairs, 3 bedrooms are well sized, including the spacious primary suite with built in shelving, two separate closets, and ensuite private bath. All baths have been updated with stone-top vanities and fresh finishes, and a dedicated laundry room in the basement level. The basement level offers a separate living room area, full bathroom, and the 4th spacious bedroom with egress. A two-car garage and wide driveway complete the property. Major mechanicals are also in great shape - making it hassle free for the next owner. The home sits in a well-established neighborhood on a quiet no-outlet road, near schools, parks, and shopping, with easy access to I-35 and K-7 for commuting around the metro.

Directions
Kansas Ave to East Cedar, South on Walker Ave
Subdivision
Millbrooke
City
Olathe
County
Johnson, KS
Property Type
Residential / Single Family Residence
Listing Updated
Dec 06, 2025 at 3:12pm
MLS Number
2587642
Property Tax
$2,807
Home Owners Association
No
Disclaimer
The information displayed on this page is confidential, proprietary, and copyrighted information of Heartland Multiple Listing Service, Inc. (“Heartland MLS”). Copyright 2025, Heartland Multiple Listing Service, Inc. Heartland MLS, Elite Realty and Agent Jo do not make any warranty or representation concerning the timeliness or accuracy of the information displayed herein. In consideration for the receipt of the information on this page, the recipient agrees to use the information solely for the private non-commercial purpose of identifying a property in which the recipient has a good faith interest in acquiring.
The data relating to real estate displayed on this website comes in part from the Heartland Multiple Listing Service database compilation. The properties displayed on this website may not be all of the properties in the Heartland MLS database compilation, or all of the properties listed with other brokers participating in the Heartland MLS IDX program. Detailed information about the properties displayed on this website includes the name of the listing company.
Information is deemed reliable but is not guaranteed.

Copyright © 2025 ELITE Realty.