1303 Pin Oak Circle, Ottawa, KS 66067

     
  • 4Beds
  •   
  • 3 Baths
  •  
  • 1½ Bath
  •  
  • 3,119Sq Ft
Mortgage Calculator

$380,000
 est. $1,920/mo

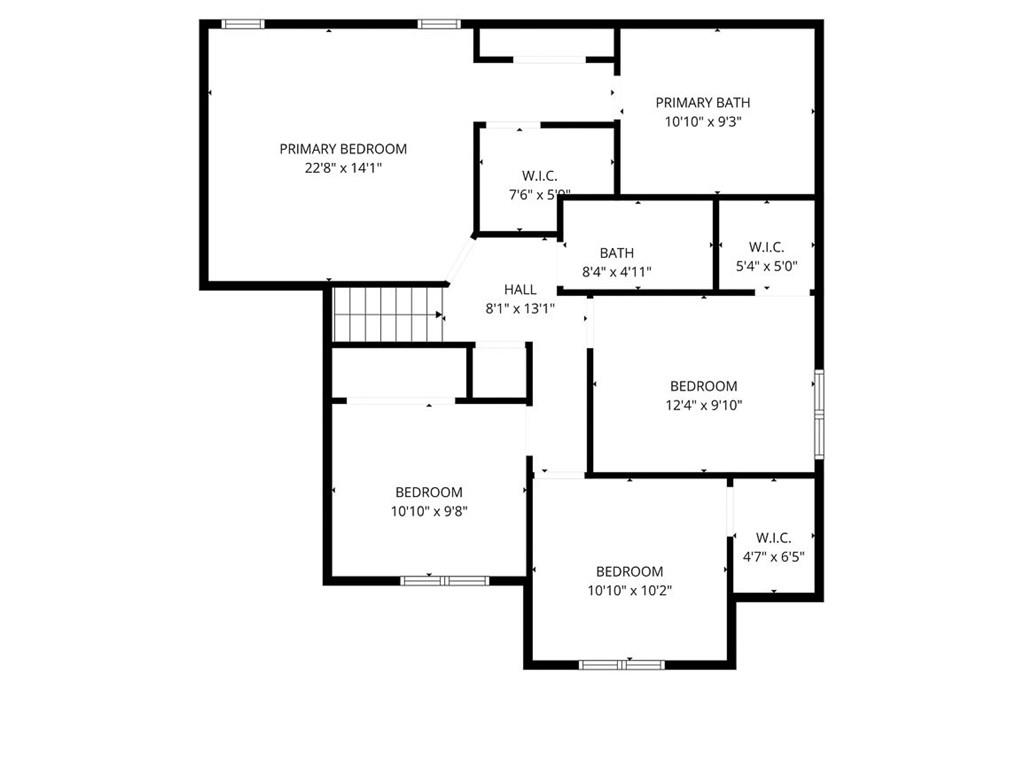
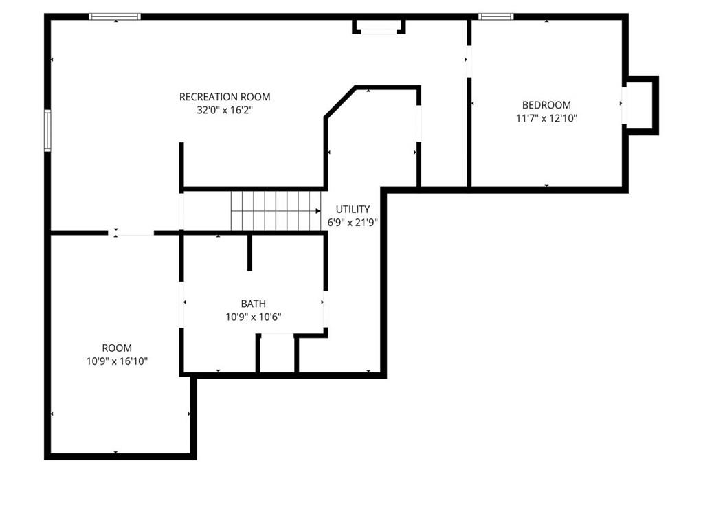
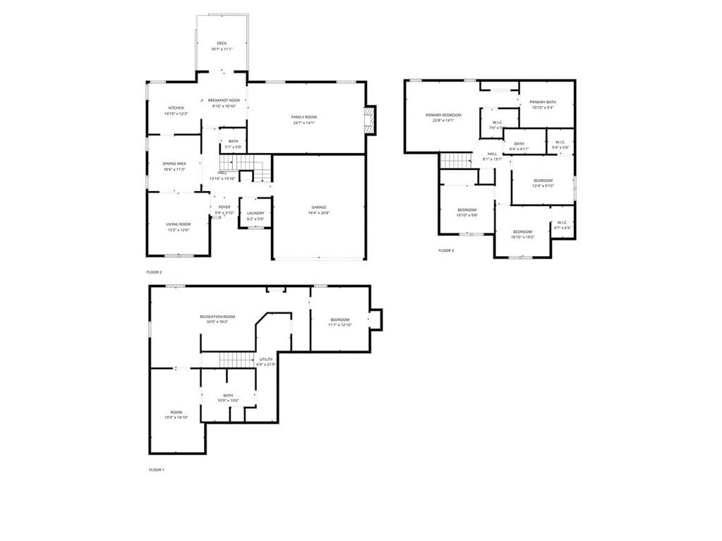
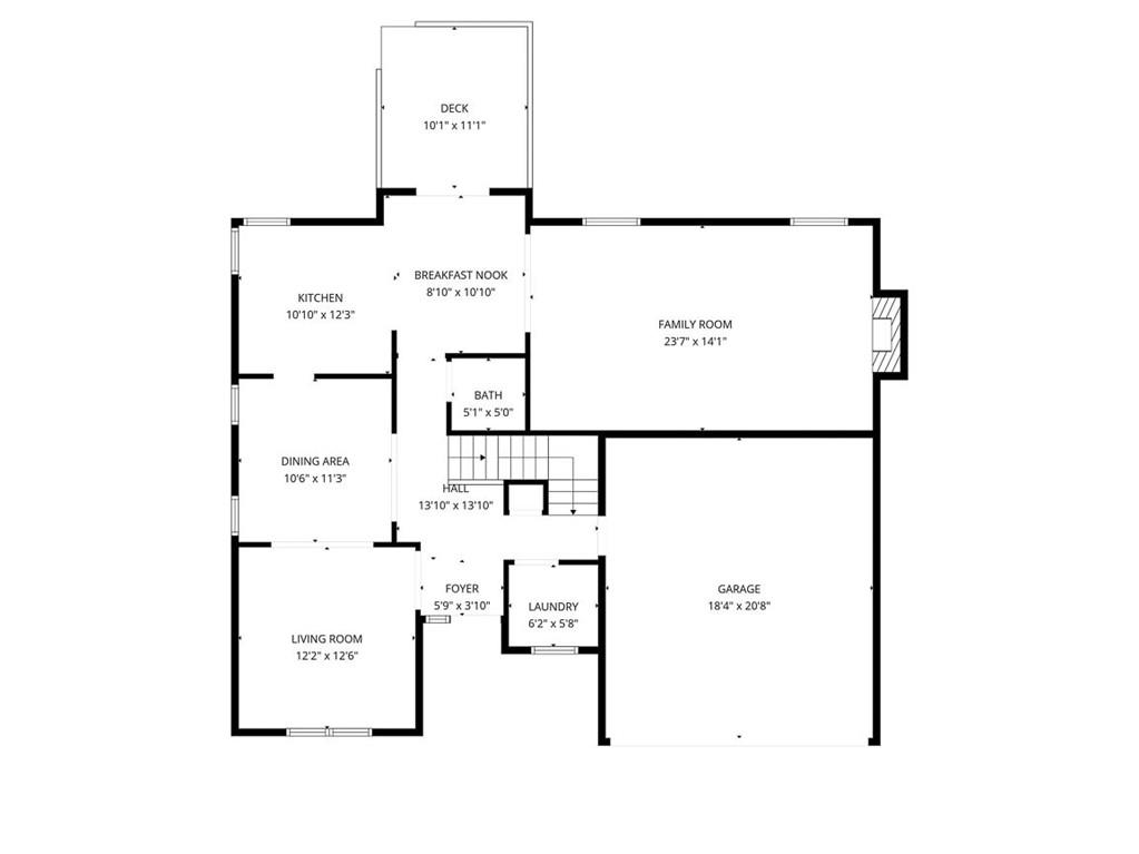
4 BR, 3 and a half bath 2 story home in Pin Oaks Subdivision. Formal dining & living room areas, family room w/gas fireplace. Eat-in kitchen opens out to a spacious deck overlooking the backyard, which has a privacy fence. Built-in desk in kitchen. Main floor laundry room. All bedrooms upstairs have mini-split air conditioning units as a secondary source of air conditioning. Basement has a rec room, wet bar, full bath and 2 "other" rooms that could be used for "non-conforming bedrooms". Ottawa Middle & High Schools are close by.

Directions
I-35 South to Ottawa's 15th Street exit. Right on 15th (aka Marshall Rd.) to Pin Oak Circle. Drive all the way to the end and home is at the end of the cul-de-sac.
Subdivision
Pin Oak Estates
City
Ottawa
County
Franklin, KS
Property Type
Residential / Single Family Residence
Listing Updated
Oct 04, 2025 at 10:10am
MLS Number
2579108
Property Tax
$5,919
Home Owners Association
No
Disclaimer
The information displayed on this page is confidential, proprietary, and copyrighted information of Heartland Multiple Listing Service, Inc. (“Heartland MLS”). Copyright 2025, Heartland Multiple Listing Service, Inc. Heartland MLS, Elite Realty and Agent Jo do not make any warranty or representation concerning the timeliness or accuracy of the information displayed herein. In consideration for the receipt of the information on this page, the recipient agrees to use the information solely for the private non-commercial purpose of identifying a property in which the recipient has a good faith interest in acquiring.
The data relating to real estate displayed on this website comes in part from the Heartland Multiple Listing Service database compilation. The properties displayed on this website may not be all of the properties in the Heartland MLS database compilation, or all of the properties listed with other brokers participating in the Heartland MLS IDX program. Detailed information about the properties displayed on this website includes the name of the listing company.
Information is deemed reliable but is not guaranteed.

Copyright © 2025 ELITE Realty.