701 Northwest 88TH Terrace, Kansas City, MO 65155

     
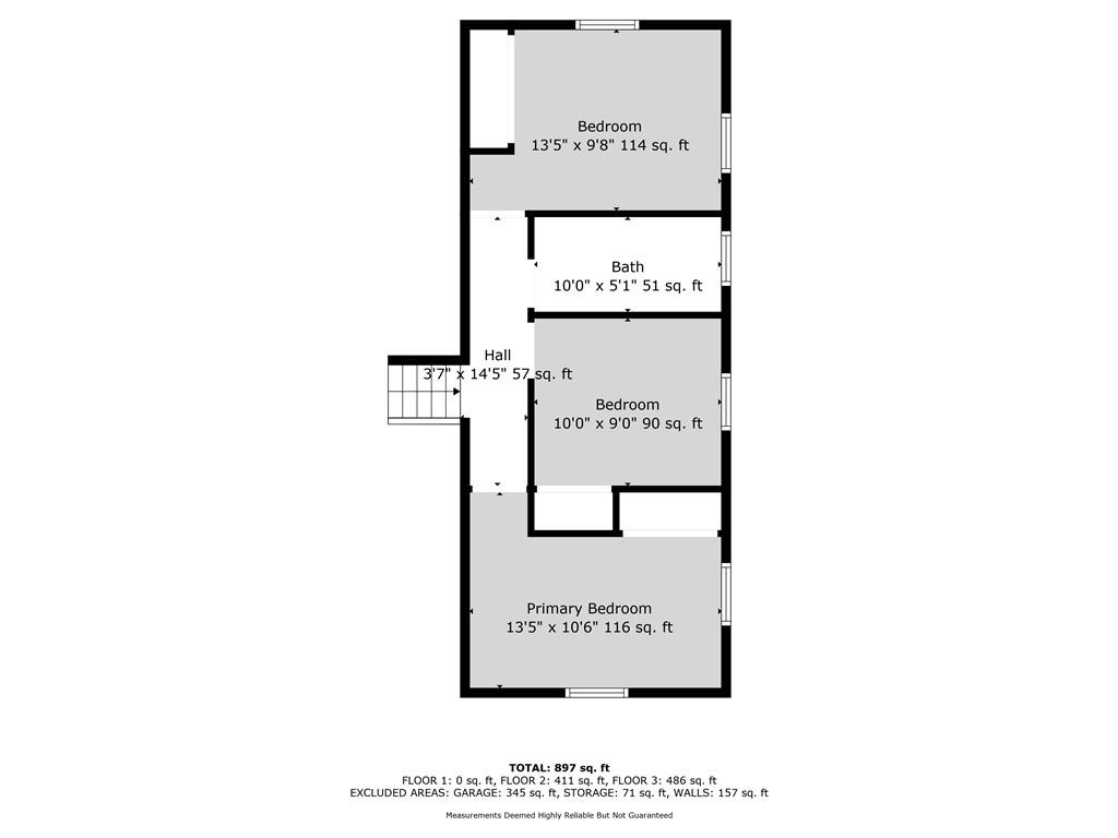
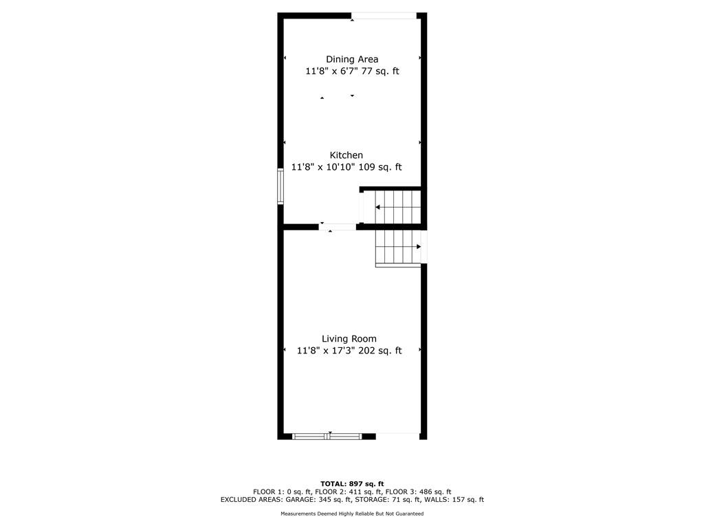
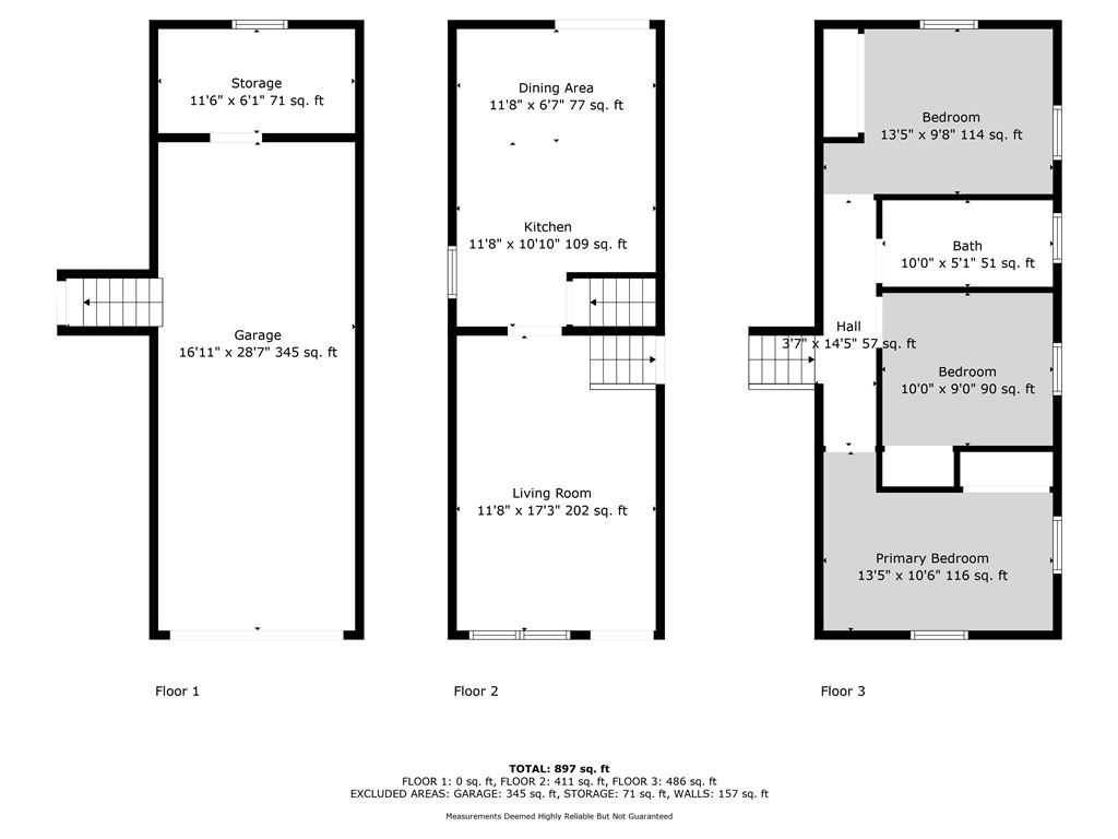
  • 3Beds
  •   
  • 1 Bath
  •  
  • 0½ Baths
  •  
  • 1,080Sq Ft
Mortgage Calculator

$200,000
 est. $871/mo

Welcome home to this beautifully updated property in Country Fair! This charming 3 bed, 1 bath home features recent updates throughout, offering a perfect blend of modern finishes and everyday functionality. With upgrades to the home and an inviting layout, this home is a must see. Recent Updates Include: • New interior paint • Hardwood flooring throughout main living areas • Updated Modern Kitchen • Updated bathroom with modern fixtures • Updated lighting and hardware Appliances: All kitchen appliances will remain in the home in their current condition. Appliances to stay AS IS, with no warranties or repairs provided by the seller. Enjoy a great location in North Kansas City Schools, close to local amenities, shopping, and major highways. Schedule your showing today!

Directions
Going W on I-70, keep left at the fork to continue on I-29 N/US -71 N, follow signs for Interstate 29 N/St Joseph, Take exit 2A for US-169 N towards Smithville, Take the Barry Rd exit, urn right onto NW Barry Rd, Turn left onto N Main St, turn left onto NW 88th St, turn right onto N Broadway St, turn left onto NW 88th Terrace
Subdivision
County Fair
City
Kansas City
County
Clay
Property Type
Residential / Single Family Residence
Listing Updated
Nov 19, 2025 at 5:11pm
MLS Number
2575056
Property Tax
$1,432
Home Owners Association
No
Disclaimer
The information displayed on this page is confidential, proprietary, and copyrighted information of Heartland Multiple Listing Service, Inc. (“Heartland MLS”). Copyright 2026, Heartland Multiple Listing Service, Inc. Heartland MLS, Elite Realty and Agent Jo do not make any warranty or representation concerning the timeliness or accuracy of the information displayed herein. In consideration for the receipt of the information on this page, the recipient agrees to use the information solely for the private non-commercial purpose of identifying a property in which the recipient has a good faith interest in acquiring.
The data relating to real estate displayed on this website comes in part from the Heartland Multiple Listing Service database compilation. The properties displayed on this website may not be all of the properties in the Heartland MLS database compilation, or all of the properties listed with other brokers participating in the Heartland MLS IDX program. Detailed information about the properties displayed on this website includes the name of the listing company.
Information is deemed reliable but is not guaranteed.

Copyright © 2026 ELITE Realty.