27601 E 128th Court, Lee's Summit, MO 64086

     
  • 4Beds
  •   
  • 3 Baths
  •  
  • 0½ Baths
  •  
  • 2,546Sq Ft
Mortgage Calculator

$549,900
 est. $2,117/mo

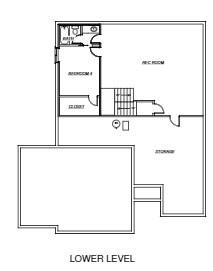
Now Under Construction – The Carlson Reverse by DRHI! Step into this beautifully designed home featuring an open-concept floor plan filled with natural light. The inviting Great Room boasts electric fireplace with a stylish tile surround, while the kitchen impresses with gorgeous stained cabinetry, solid-surface countertops, and an electric cooktop. Hardwood floors flow seamlessly through the kitchen, dining area, Great Room, mudroom, and pantry, adding warmth and elegance. The luxurious primary suite offers a private bath with a tiled shower, while additional bathrooms and the laundry room are finished with gleaming tile for a polished look. Enjoy even more space with a finished daylight basement, perfect for entertaining or relaxing, plus a 12x10 deck for outdoor living. Located in the highly sought-after Foxberry Estates, residents enjoy resort-style amenities including a pool, clubhouse, scenic trails, and playgrounds. Home is under construction and final pricing is subject to change.

Directions
Take 50 Hwy to 7 Hwy Exit, head south on 7 Hwy. Left turn on 127th St (Foxberry entrance). First right onto E 128th Court. Home will be on your right.
Subdivision
Foxberry Estates
City
Lee's Summit
County
Jackson
Property Type
Residential / Single Family Residence
Listing Updated
Mar 29, 2026 at 5:03pm
MLS Number
2574503
Property Tax
$632
Home Owners Association
Yes - Foxberry Estates HOA
Disclaimer
The information displayed on this page is confidential, proprietary, and copyrighted information of Heartland Multiple Listing Service, Inc. (“Heartland MLS”). Copyright 2026, Heartland Multiple Listing Service, Inc. Heartland MLS, Elite Realty and Agent Jo do not make any warranty or representation concerning the timeliness or accuracy of the information displayed herein. In consideration for the receipt of the information on this page, the recipient agrees to use the information solely for the private non-commercial purpose of identifying a property in which the recipient has a good faith interest in acquiring.
The data relating to real estate displayed on this website comes in part from the Heartland Multiple Listing Service database compilation. The properties displayed on this website may not be all of the properties in the Heartland MLS database compilation, or all of the properties listed with other brokers participating in the Heartland MLS IDX program. Detailed information about the properties displayed on this website includes the name of the listing company.
Information is deemed reliable but is not guaranteed.

Copyright © 2026 ELITE Realty.