17120 Northwest 133rd Street, Platte City, MO 64079

     
  • 4Beds
  •   
  • 3 Baths
  •  
  • 0½ Baths
  •  
  • 2,424Sq Ft
Mortgage Calculator

$469,900
 est. $2,079/mo

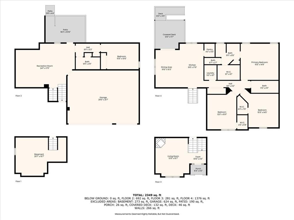
Discover this stunning home in one of Platte County’s premier neighborhoods, perfectly combining quality craftsmanship with modern comfort. This 4-bedroom, 3-bath beauty offers 2,424 sq. ft. of thoughtfully designed living space, filled with natural light and stylish upgrades. Enjoy features like granite countertops, custom cabinets, a walk-in pantry, gleaming hardwood floors, and a cozy fireplace. The spacious primary suite boasts a luxurious bath and walk-in closet. The oversized 3-car garage provides ample storage and parking, with extra room available in the unfinished sub-basement. Relax and unwind on the covered back deck overlooking the fenced backyard, with additional outdoor storage conveniently located beneath the deck.

Directions
Turn onto RT-92, turn left onto Kentucky Ave., at the roundabout, take the 3rd exit onto SSR-N, turn left onto NW 133rd St., and your destination is on the left.
Subdivision
Copper Ridge
City
Platte City
County
Platte
Property Type
Residential / Single Family Residence
Listing Updated
Jan 10, 2026 at 6:01pm
MLS Number
2569229
Property Tax
$3,775
Home Owners Association
No
Disclaimer
The information displayed on this page is confidential, proprietary, and copyrighted information of Heartland Multiple Listing Service, Inc. (“Heartland MLS”). Copyright 2026, Heartland Multiple Listing Service, Inc. Heartland MLS, Elite Realty and Agent Jo do not make any warranty or representation concerning the timeliness or accuracy of the information displayed herein. In consideration for the receipt of the information on this page, the recipient agrees to use the information solely for the private non-commercial purpose of identifying a property in which the recipient has a good faith interest in acquiring.
The data relating to real estate displayed on this website comes in part from the Heartland Multiple Listing Service database compilation. The properties displayed on this website may not be all of the properties in the Heartland MLS database compilation, or all of the properties listed with other brokers participating in the Heartland MLS IDX program. Detailed information about the properties displayed on this website includes the name of the listing company.
Information is deemed reliable but is not guaranteed.

Copyright © 2026 ELITE Realty.