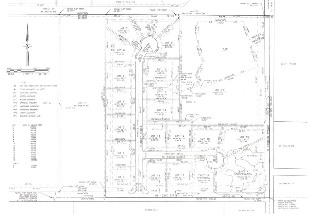
13308 Winner's Circle, Smithville, MO 64089

Mortgage Calculator

$195,000
 est. $895/mo

Eastern Estates offers the perfect blend of rustic charm and upscale living just outside Kansas City, with approx. 1-acre lots thoughtfully designed for comfort and convenience. Located minutes from Liberty, KC Northland, Downtown, KCI Airport, Smithville, and Kearney, this community provides unbeatable access while avoiding the KC earnings tax if you work outside of KC. Zoned in the highly acclaimed Smithville School District, Eastern Estates welcomes your builder of choice (with developer approval) and features stylish homes that combine modern elegance with country warmth. Residents enjoy the peace of mind that comes with Timber Creek Sewer Co. connections—no septic systems here—and a true sense of community in a smaller neighborhood where connection comes naturally. This is luxury living reimagined at the edge of the city. A countryside vibe without the acreage upkeep — more time to enjoy, less time to maintain.

Directions
MO HWY 291 to North Eastern Street. Head North on North Eastern Street to 132nd Street, then turn left on 132nd Street to subdivision entrance, entry on the right.
Subdivision
Eastern Estates
City
Smithville
County
Clay
Property Type
Land / Unimproved Land
Listing Updated
Dec 03, 2025 at 9:12am
MLS Number
2566946
Property Tax
$0
Zoning
$Res
Home Owners Association
Yes - Eastern Estates HOA
Disclaimer
The information displayed on this page is confidential, proprietary, and copyrighted information of Heartland Multiple Listing Service, Inc. (“Heartland MLS”). Copyright 2026, Heartland Multiple Listing Service, Inc. Heartland MLS, Elite Realty and Agent Jo do not make any warranty or representation concerning the timeliness or accuracy of the information displayed herein. In consideration for the receipt of the information on this page, the recipient agrees to use the information solely for the private non-commercial purpose of identifying a property in which the recipient has a good faith interest in acquiring.
The data relating to real estate displayed on this website comes in part from the Heartland Multiple Listing Service database compilation. The properties displayed on this website may not be all of the properties in the Heartland MLS database compilation, or all of the properties listed with other brokers participating in the Heartland MLS IDX program. Detailed information about the properties displayed on this website includes the name of the listing company.
Information is deemed reliable but is not guaranteed.

Copyright © 2026 ELITE Realty.