201 Ash Street, Gallatin, MO 64640

Mortgage Calculator

$275,000
 est. $1,436/mo

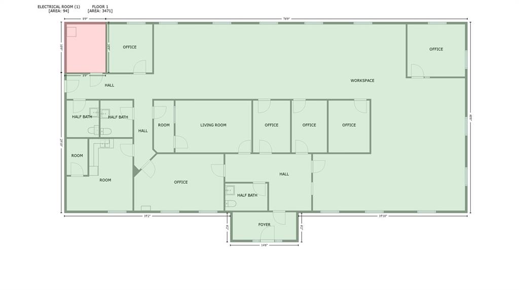
Great commercial office building built in 2002 specifically for Department of Social Services for the state of Missouri. Great turnkey low maintenance investment with future rent growth potential. The property sits on a 1.1 acre and boasts 3,440sqft. The same tenant has occupied the building and rents haven't been increased in 10 years. Paved Asphalt parking lot with 20+/- parking spots. Great opportunity for a low maintenance turnkey investment property.

Directions
Follow US-69 N and MO-6 E to your destination in Gallatin, Turn right onto Ash Property is on your Left.
Subdivision
Other
City
Gallatin
County
Daviess
Property Type
Commercial Sale / Office
Listing Updated
Sep 03, 2025 at 8:09am
MLS Number
2566601
Property Tax
$4,834
Disclaimer
The information displayed on this page is confidential, proprietary, and copyrighted information of Heartland Multiple Listing Service, Inc. (“Heartland MLS”). Copyright 2026, Heartland Multiple Listing Service, Inc. Heartland MLS, Elite Realty and Agent Jo do not make any warranty or representation concerning the timeliness or accuracy of the information displayed herein. In consideration for the receipt of the information on this page, the recipient agrees to use the information solely for the private non-commercial purpose of identifying a property in which the recipient has a good faith interest in acquiring.
The data relating to real estate displayed on this website comes in part from the Heartland Multiple Listing Service database compilation. The properties displayed on this website may not be all of the properties in the Heartland MLS database compilation, or all of the properties listed with other brokers participating in the Heartland MLS IDX program. Detailed information about the properties displayed on this website includes the name of the listing company.
Information is deemed reliable but is not guaranteed.

Copyright © 2026 ELITE Realty.