525 N Cedar Street, Ottawa, KS 66067

     
  • 3Beds
  •   
  • 2 Baths
  •  
  • 0½ Baths
  •  
  • 1,282Sq Ft
Mortgage Calculator

$275,000
 est. $1,082/mo

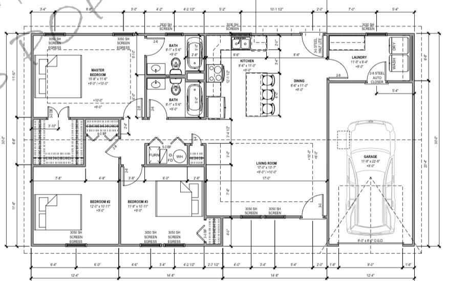
Beautiful New Ranch Style Home currently under construction is a part of the Neighborhood Revitalization Program providing a Tax Rebate for 10 YEARS!! This Beautiful Ranch home has 3 Nice sized Bedrooms, the Primary has a large Walk in Closet and ensuite Bathroom with a large walk in shower. The hall Bath has a tub/shower combo. This Open Floor Plan has 9 Foot Ceilings throughout, Beautiful Tray Ceilings and Ceiling Fans in Living Room and Primary Bedroom. Large 36x60 Windows make the home feel much Larger and Roomier with tons of Natural Light. The Eat in Kitchen features luxurious Granite counter tops, a nice Island for Storage and Work space and a Bar for Seating. SS appliance pkg including Electric Stove, Microwave, and Dishwasher. Luxury Vinyl Plank flooring in Kitchen, LR, Mud Room, Hall. Carpeting in Bedrooms. Also including a Fantastic Mudroom/Laundry Room/Storage area inside the garage door and next to the kitchen, to take your shoes and coat off, deposit groceries, etc. The Owners/Builders take painstaking efforts to build their homes with the Top Quality Craftsmanship and Materials they would install in their very own home. The walls and concrete slab will be sealed with R Guard seam sealer w/ insect repellent. Single Car Attached Garage with Automatic Door Opener and Outside Keypad and 8 ft Garage Door for taller vehicles. Dusk to Dawn light fixtures in the front of the garage. This home will feature a Large 10ft x 10ft concrete patio in back for entertaining and relaxing. This home is being built on a very large lot with plenty of room for alleyway parking and a Great Backyard. Located Close to convenience stores, gas stations, a Great BBQ restaurant and quick highway access to North and South bound I-35 and 59 Hwy to Lawrence. Estimated Completion Date March 2026. Model Home photos. Colors and Finishes may be different. Tax amount listed is for empty lot.

Directions
Heading North on Main St, turn right (east) at Logan St, turn left (north) on Cedar St. Lot is on the Right, 1 house up from the next corner.
Subdivision
Bowles Sheldon & Toppings
City
Ottawa
County
Franklin, KS
Property Type
Residential / Single Family Residence
Listing Updated
Oct 20, 2025 at 9:10pm
MLS Number
2562023
Property Tax
$594
Home Owners Association
No
Disclaimer
The information displayed on this page is confidential, proprietary, and copyrighted information of Heartland Multiple Listing Service, Inc. (“Heartland MLS”). Copyright 2025, Heartland Multiple Listing Service, Inc. Heartland MLS, Elite Realty and Agent Jo do not make any warranty or representation concerning the timeliness or accuracy of the information displayed herein. In consideration for the receipt of the information on this page, the recipient agrees to use the information solely for the private non-commercial purpose of identifying a property in which the recipient has a good faith interest in acquiring.
The data relating to real estate displayed on this website comes in part from the Heartland Multiple Listing Service database compilation. The properties displayed on this website may not be all of the properties in the Heartland MLS database compilation, or all of the properties listed with other brokers participating in the Heartland MLS IDX program. Detailed information about the properties displayed on this website includes the name of the listing company.
Information is deemed reliable but is not guaranteed.

Copyright © 2025 ELITE Realty.