2305 Southeast Horseshoe Drive, Oak Grove, MO 64075

     
  • 3Beds
  •   
  • 3 Baths
  •  
  • 0½ Baths
  •  
  • 2,744Sq Ft
Mortgage Calculator

$415,000
 est. $1,823/mo

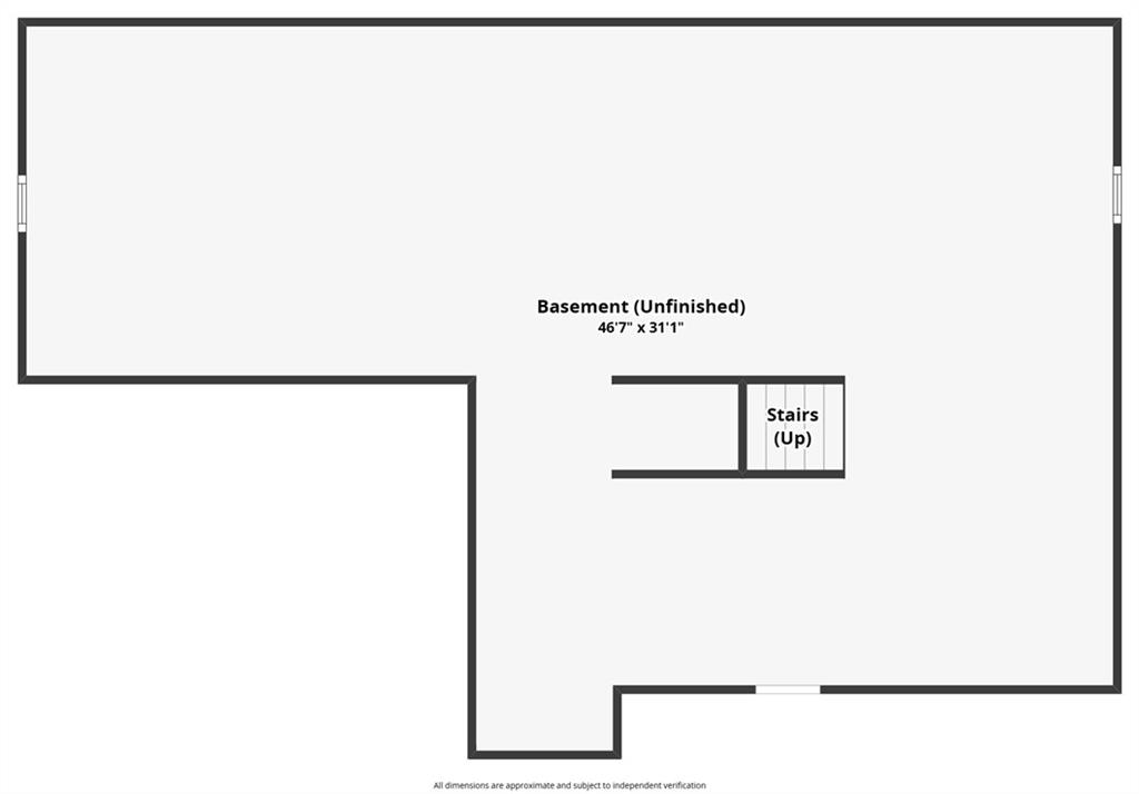
This 3-bedroom, 3-bathroom home features hardwood floors throughout and a super cozy fireplace in the living room. The kitchen includes a movable island, a pantry and a dishwasher. The main bedroom has 2 walk-in closets with a private main bathroom and sitting room. The property sits on a 1.12-acre lot with a fully fenced backyard and a full unfinished basement. The home also has a laundry room conveniently located next to the kitchen. Feel like you are living in the country!

Directions
Go east 12th Street which turns into Golden Belt Road, take Fulks Road to Green Oaks Lane, Green Oaks Lane to Horseshoe Drive to home.
Subdivision
Green Oaks
City
Oak Grove
County
Lafayette
Property Type
Residential / Single Family Residence
Listing Updated
Dec 13, 2025 at 3:12pm
MLS Number
2559112
Property Tax
$3,180
Home Owners Association
Yes
Disclaimer
The information displayed on this page is confidential, proprietary, and copyrighted information of Heartland Multiple Listing Service, Inc. (“Heartland MLS”). Copyright 2025, Heartland Multiple Listing Service, Inc. Heartland MLS, Elite Realty and Agent Jo do not make any warranty or representation concerning the timeliness or accuracy of the information displayed herein. In consideration for the receipt of the information on this page, the recipient agrees to use the information solely for the private non-commercial purpose of identifying a property in which the recipient has a good faith interest in acquiring.
The data relating to real estate displayed on this website comes in part from the Heartland Multiple Listing Service database compilation. The properties displayed on this website may not be all of the properties in the Heartland MLS database compilation, or all of the properties listed with other brokers participating in the Heartland MLS IDX program. Detailed information about the properties displayed on this website includes the name of the listing company.
Information is deemed reliable but is not guaranteed.

Copyright © 2025 ELITE Realty.