18904 Bella Terra Road, Raymore, MO 64083

     
  • 4Beds
  •   
  • 4 Baths
  •  
  • 2½ Baths
  •  
  • 3,958Sq Ft
Mortgage Calculator

$1,399,000
 est. $5,252/mo

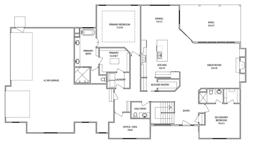
Welcome to this exceptional custom-designed estate home, ideally situated on over 3.5+/- acres in Cass County’s premier estate lot community, Bella Terra. This thoughtfully crafted residence features almost 4,000 square feet; 2,500 square feet of the main floor, offering 2+ bedrooms and 2.5 bathrooms, with an additional 1,400+ square feet finished in the lower level, 2 spacious bedrooms and a large living room with a wet bar. Created with a “forever home” mindset, the floor plan seamlessly blends everyday comfort with timeless flexibility. The home was intentionally positioned to maximize natural light and backyard views, making it the ideal canvas for future outdoor enhancements such as outdoor kitchen and living space, a pool, pool house, detached shop, carriage house, or mother-in-law quarters - all of which are allowed in Bella Terra with Design Review Committee approval. The community itself is a private sanctuary just minutes from top-rated schools, retail, and entertainment, offering dual fuel access (natural gas and electric), high-speed fiber internet - ensuring personalized modern living. With architectural standards requiring quality construction and elegant design, and lots with ample room for tailored lifestyle additions. Prefer to build your dream home from the ground up? Additional lots are available, offering you the opportunity to start from scratch with your preferred builder — or let us introduce you to vetted custom home builders who can bring your vision to life. Ready to move now as well as dreaming big for all the future options, Bella Terra offers the ideal blend of sophistication, freedom, and opportunity.

Directions
SOUTH ON 291 FROM LEES SUMMIT MISSOURI TO HUBACH HILL RD, HEAD WEST ON HUBACH HILL RD, COMMUNITY IS ON THE SOUTH SIDE OF HUBACH HILL RD.
Subdivision
Bella Terra
City
Raymore
County
Cass
Property Type
Residential / Single Family Residence
Listing Updated
Mar 07, 2026 at 2:03am
MLS Number
2556684
Property Tax
$1
Home Owners Association
Yes - Bella Terra Home Owners Association
Disclaimer
The information displayed on this page is confidential, proprietary, and copyrighted information of Heartland Multiple Listing Service, Inc. (“Heartland MLS”). Copyright 2026, Heartland Multiple Listing Service, Inc. Heartland MLS, Elite Realty and Agent Jo do not make any warranty or representation concerning the timeliness or accuracy of the information displayed herein. In consideration for the receipt of the information on this page, the recipient agrees to use the information solely for the private non-commercial purpose of identifying a property in which the recipient has a good faith interest in acquiring.
The data relating to real estate displayed on this website comes in part from the Heartland Multiple Listing Service database compilation. The properties displayed on this website may not be all of the properties in the Heartland MLS database compilation, or all of the properties listed with other brokers participating in the Heartland MLS IDX program. Detailed information about the properties displayed on this website includes the name of the listing company.
Information is deemed reliable but is not guaranteed.

Copyright © 2026 ELITE Realty.