2718 Funston Drive, Iola, KS 66749

     
  • 3Beds
  •   
  • 3 Baths
  •  
  • 1½ Bath
  •  
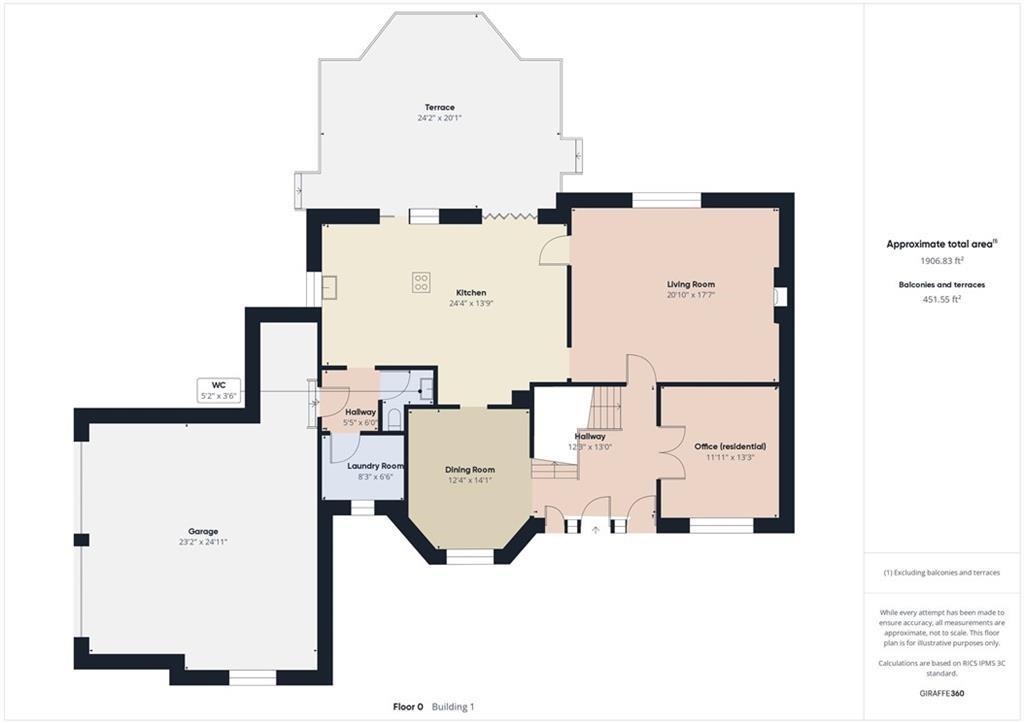
  • 2,952Sq Ft
Mortgage Calculator

$530,000
 est. $2,554/mo

Welcome to your forever home! Nestled in a highly sought-after neighborhood, this beautiful custom-built home offers 3 spacious bedrooms and 3.5 baths. Impeccably maintained by its original owner, this move-in-ready residence offers the best of both worlds: privacy on just under three acres and the convenience of being close to town. The home boasts a modern, all-electric setup, ensuring efficiency and comfort throughout. The open and inviting floor plan is perfect for both family living and entertaining guests. The generous master suite provides a peaceful retreat with an en-suite bath, walk in closets as well as a cedar closet. Two additional bedrooms offer ample space and flexibility for family or home office needs. Additionally, the seller is offering a $2,500 carpet allowance, allowing you to add a personal touch to your new home. Property includes the bonus two car detached garage. Enjoy pristine outdoor spaces where you can unwind and appreciate the natural surroundings. Don’t miss this rare opportunity to own a gorgeous home in a prime location with all the benefits of privacy and proximity. Schedule your showing today and fall in love with everything this exceptional property has to offer!

Directions
South on 169 Hwy to Oregon Road. West on Oregon Road to 1600th Street/ N. Kentucky South on 1600th/Kentucky West on East Miller Road to N Funston St North on Funston
Subdivision
None
City
Iola
County
Allen
Property Type
Residential / Single Family Residence
Listing Updated
Jun 13, 2025 at 4:06am
MLS Number
2556122
Property Tax
$6,770
Home Owners Association
No
Disclaimer
The information displayed on this page is confidential, proprietary, and copyrighted information of Heartland Multiple Listing Service, Inc. (“Heartland MLS”). Copyright 2025, Heartland Multiple Listing Service, Inc. Heartland MLS, Elite Realty and Agent Jo do not make any warranty or representation concerning the timeliness or accuracy of the information displayed herein. In consideration for the receipt of the information on this page, the recipient agrees to use the information solely for the private non-commercial purpose of identifying a property in which the recipient has a good faith interest in acquiring.
The data relating to real estate displayed on this website comes in part from the Heartland Multiple Listing Service database compilation. The properties displayed on this website may not be all of the properties in the Heartland MLS database compilation, or all of the properties listed with other brokers participating in the Heartland MLS IDX program. Detailed information about the properties displayed on this website includes the name of the listing company.
Information is deemed reliable but is not guaranteed.

Copyright © 2025 ELITE Realty.