11960 Quivira Road, Overland Park, KS 66210

Mortgage Calculator

$25
 est. $791/mo

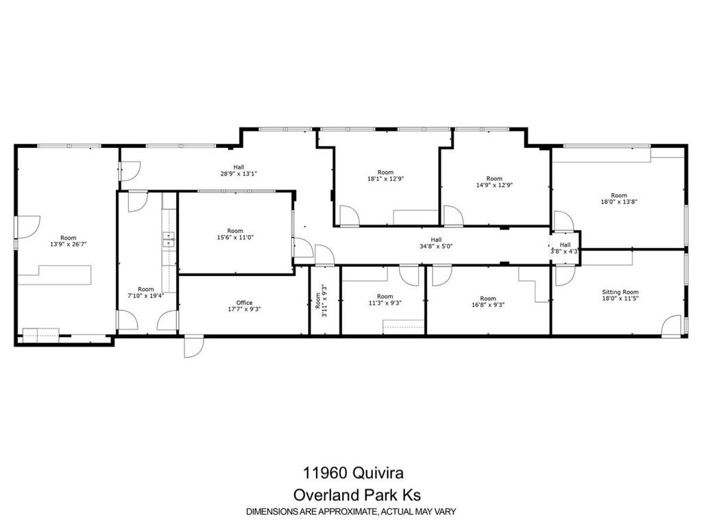
Prime office space available in a highly visible, sought-after location. Fully handicap accessible, this property offers 2885 square feet of rentable space, featuring private offices, a welcoming reception area, and three convenient exit doors. Ample front parking ensures easy access. Located in the 119th & Quivira Office Park, home to a mix of medical, dental, office, and daycare establishments, this versatile space is ideal for medical practices or executive offices. The property is in excellent condition, move-in ready, and part of a well-maintained complex with new concrete installed in 2024 and a freshly updated parking lot in 2025.

Directions
Just south of 119th & Quivira on West side of road.
City
Overland Park
County
Johnson, KS
Property Type
Commercial Lease / Office
Listing Updated
Jun 09, 2025 at 11:06am
MLS Number
2555611
Property Tax
$9,490
Zoning
$CP-O
Disclaimer
The information displayed on this page is confidential, proprietary, and copyrighted information of Heartland Multiple Listing Service, Inc. (“Heartland MLS”). Copyright 2026, Heartland Multiple Listing Service, Inc. Heartland MLS, Elite Realty and Agent Jo do not make any warranty or representation concerning the timeliness or accuracy of the information displayed herein. In consideration for the receipt of the information on this page, the recipient agrees to use the information solely for the private non-commercial purpose of identifying a property in which the recipient has a good faith interest in acquiring.
The data relating to real estate displayed on this website comes in part from the Heartland Multiple Listing Service database compilation. The properties displayed on this website may not be all of the properties in the Heartland MLS database compilation, or all of the properties listed with other brokers participating in the Heartland MLS IDX program. Detailed information about the properties displayed on this website includes the name of the listing company.
Information is deemed reliable but is not guaranteed.

Copyright © 2026 ELITE Realty.