18171 198th Street, Tonganoxie, KS 66086

     
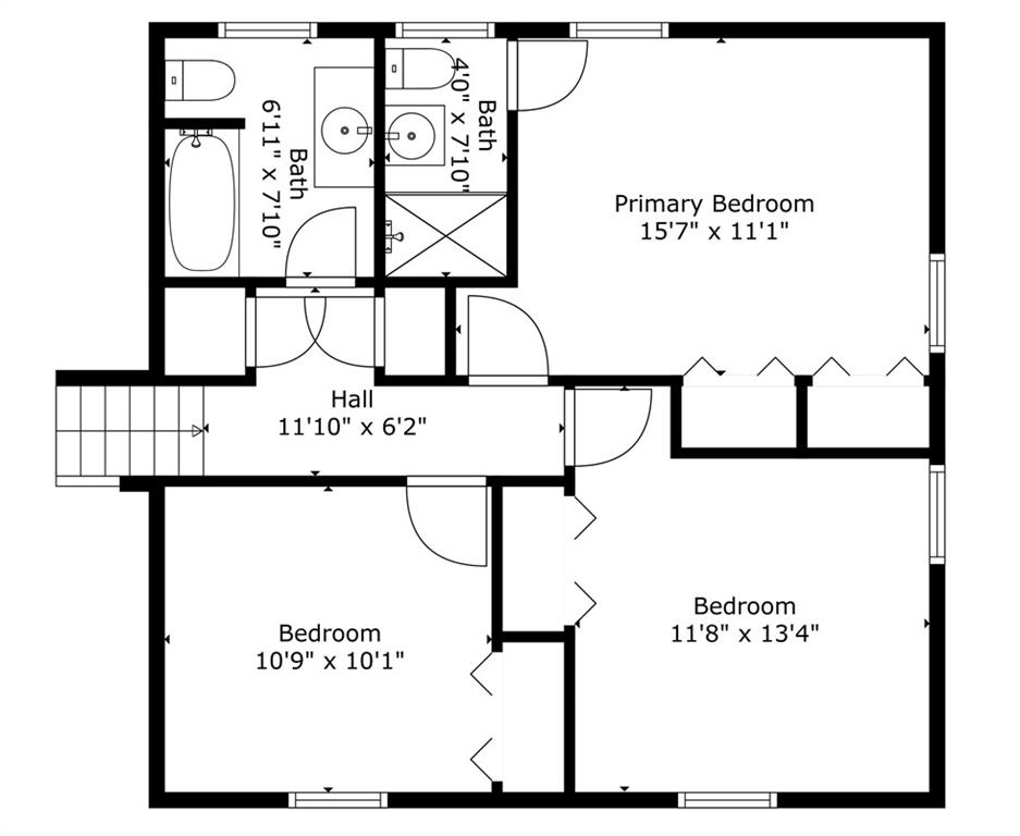
  • 3Beds
  •   
  • 3 Baths
  •  
  • 0½ Baths
  •  
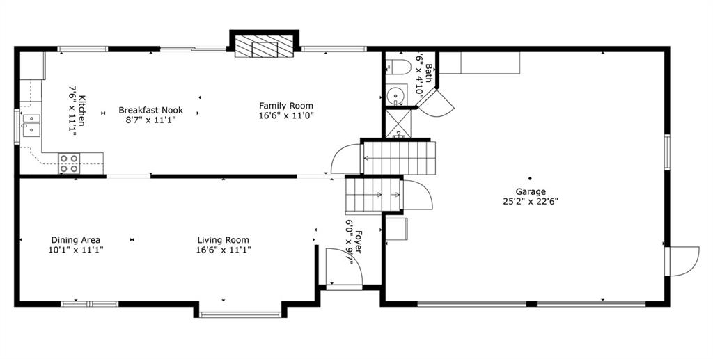
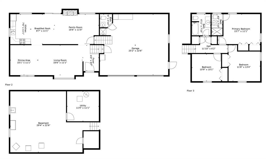
  • 1,428Sq Ft
Mortgage Calculator

$535,000
 est. $2,326/mo

Come check out this Split-Level Retreat on Nearly 10 Acres – Fully Remodeled & Ready for Country Living! Welcome to your dream homestead! This beautifully remodeled side-by-side split level home features 3 spacious bedrooms and 3 full bathrooms, offering comfortable living and modern convenience throughout. The home is serviced by a well, wood burning stove and propane, helping to keep utility costs low while giving you the freedom of country living. Outside, the nearly 10-acre property is fully fenced and perfectly set up for your farming or hobby animal needs. The back acreage produces lush brome hay—ideal for grazing or harvesting. Nature lovers will appreciate the abundance of mature trees, including apple, peach, pear, and cherry, along with vibrant flowers scattered across the property. A fenced chicken coop and a well maintained barn with three stalls provide everything you need to get started or expand your rural lifestyle. The barn also includes an attached room that’s perfect for tack, feed, or extra storage. Located just off the blacktop, this property combines convenience with tranquility—perfect for those looking to enjoy the best of country living without sacrificing accessibility. Don’t miss your chance to own this slice of country paradise—schedule your showing today!

Directions
From 24-40 turn south on 198th St. and house is on the right.
Subdivision
None
City
Tonganoxie
County
Leavenworth
Property Type
Residential / Single Family Residence
Listing Updated
Dec 13, 2025 at 4:12pm
MLS Number
2545556
Property Tax
$3,803
Home Owners Association
No
Disclaimer
The information displayed on this page is confidential, proprietary, and copyrighted information of Heartland Multiple Listing Service, Inc. (“Heartland MLS”). Copyright 2025, Heartland Multiple Listing Service, Inc. Heartland MLS, Elite Realty and Agent Jo do not make any warranty or representation concerning the timeliness or accuracy of the information displayed herein. In consideration for the receipt of the information on this page, the recipient agrees to use the information solely for the private non-commercial purpose of identifying a property in which the recipient has a good faith interest in acquiring.
The data relating to real estate displayed on this website comes in part from the Heartland Multiple Listing Service database compilation. The properties displayed on this website may not be all of the properties in the Heartland MLS database compilation, or all of the properties listed with other brokers participating in the Heartland MLS IDX program. Detailed information about the properties displayed on this website includes the name of the listing company.
Information is deemed reliable but is not guaranteed.

Copyright © 2025 ELITE Realty.