2120 Wyandotte Street, Kansas City, MO 64108

     
  • 2Beds
  •   
  • 2 Baths
  •  
  • 0½ Baths
  •  
  • 2,226Sq Ft
Mortgage Calculator

$1,100,000
 est. $4,584/mo

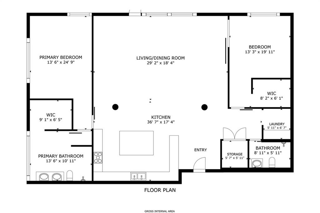
RARE opportunity to own a spacious, single-level 2,200+ sf largely furnished condo in the Crossroads' Freighthouse Flats! There is nothing else quite like this property on the market -- spacious open floor plan is designed for entertaining with large living and dining spaces, a huge kitchen with plenty of storage in the island. Concealed, built-in fridge and freezer. Tons of counter space. Bedrooms are on opposite ends of the living space. Primary bedroom includes an en suite with walk-in closet, dual vanities, and a huge shower. Second bedroom has access to a smaller, but equally well-appointed bathroom. Laundry room with ample storage. This unit boasts one of the largest balconies in the building with space for outdoor dining, a grill, and more (including amazing nighttime views including a clear sight line to the iconic Western Auto sign). Faces a low-traffic area providing unexpected privacy. Two of the best (right at the front!) reserved, secured garage spaces included. Being sold with most furniture and artwork (list in supplements). All appliances, TVs, and more stays! 50% tax abatement until 2030. Walking distance to everywhere you want to be -- Jack Stack, Lidia's, Crossroads Hotel, Lazia, Farina, Extra Virgin, The Wise Guy, Union Station, and SO MUCH MORE!

Directions
From downtown take Grand Blvd south to 20th street and turn right (West), proceed to Wyandotte and turn left (South) go straight and you will see the building on the right hand side just before W 22nd St.
Subdivision
Freighthouse Flats
City
Kansas City
County
Jackson
Property Type
Residential / Condominium
Listing Updated
Sep 11, 2025 at 8:09pm
MLS Number
2538322
Property Tax
$5,456
Home Owners Association
Yes - Hunter Residential
Disclaimer
The information displayed on this page is confidential, proprietary, and copyrighted information of Heartland Multiple Listing Service, Inc. (“Heartland MLS”). Copyright 2025, Heartland Multiple Listing Service, Inc. Heartland MLS, Elite Realty and Agent Jo do not make any warranty or representation concerning the timeliness or accuracy of the information displayed herein. In consideration for the receipt of the information on this page, the recipient agrees to use the information solely for the private non-commercial purpose of identifying a property in which the recipient has a good faith interest in acquiring.
The data relating to real estate displayed on this website comes in part from the Heartland Multiple Listing Service database compilation. The properties displayed on this website may not be all of the properties in the Heartland MLS database compilation, or all of the properties listed with other brokers participating in the Heartland MLS IDX program. Detailed information about the properties displayed on this website includes the name of the listing company.
Information is deemed reliable but is not guaranteed.

Copyright © 2025 ELITE Realty.